• Skip to content
  • Skip to footer

Building Innovationz Ltd

  • Land & Home Packages
  • Projects
  • About & Contact
  • Facebook
You are here: Home / Projects / Te Aranui – Lot 5

Te Aranui – Lot 5

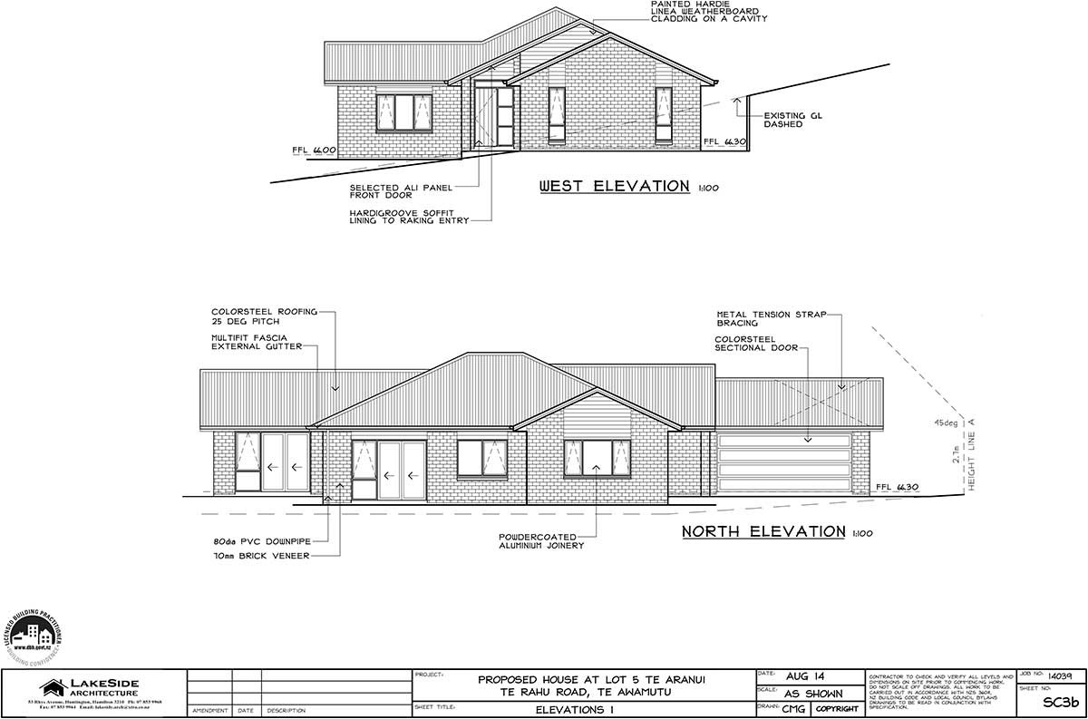
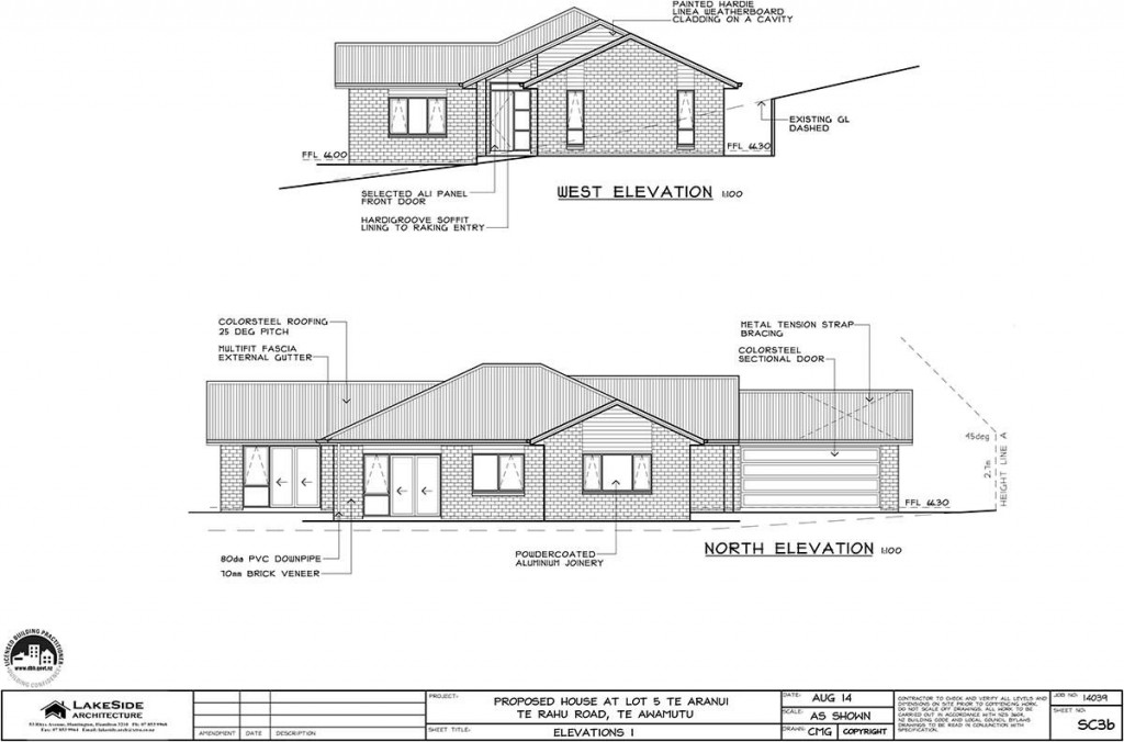
4 bedroom home – Te Awamutu

  • 208m2
  • 2 living areas with
  • 2.7m stud
  • 2 bathrooms
  • Double garage
  • 795m2 section
te aranui lot 5 north view
te aranui lot 5 elevation 2
te aranui lot 5 elevation 1
te aranui lot 5 plan

 

 

Footer

bil-footer
Tim Spencer - Director
Ph: 0274 595 692
For further information

Contact Us Today

Copyright © 2018 Building Innovationz Limited | Site by AS Photo